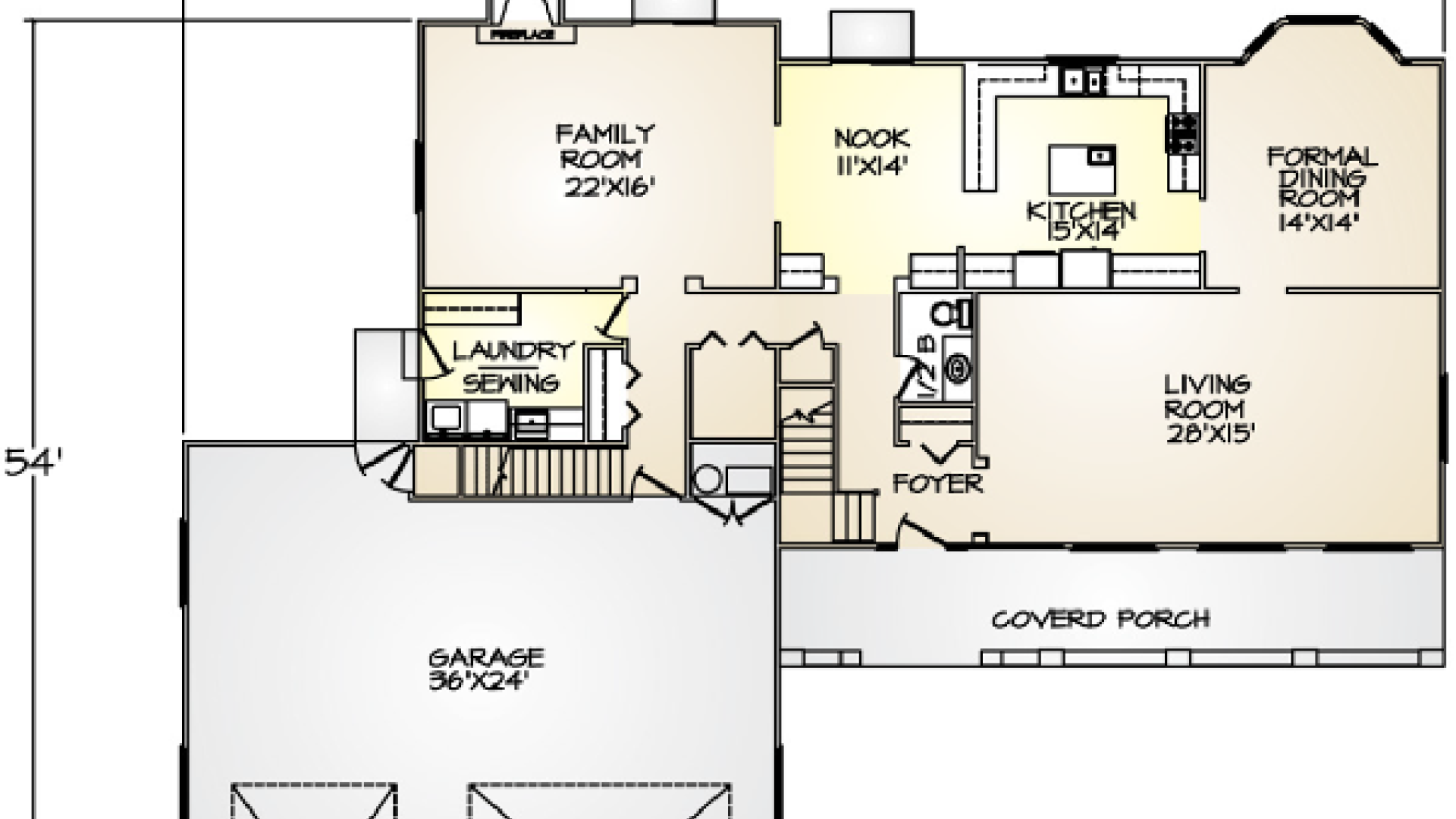
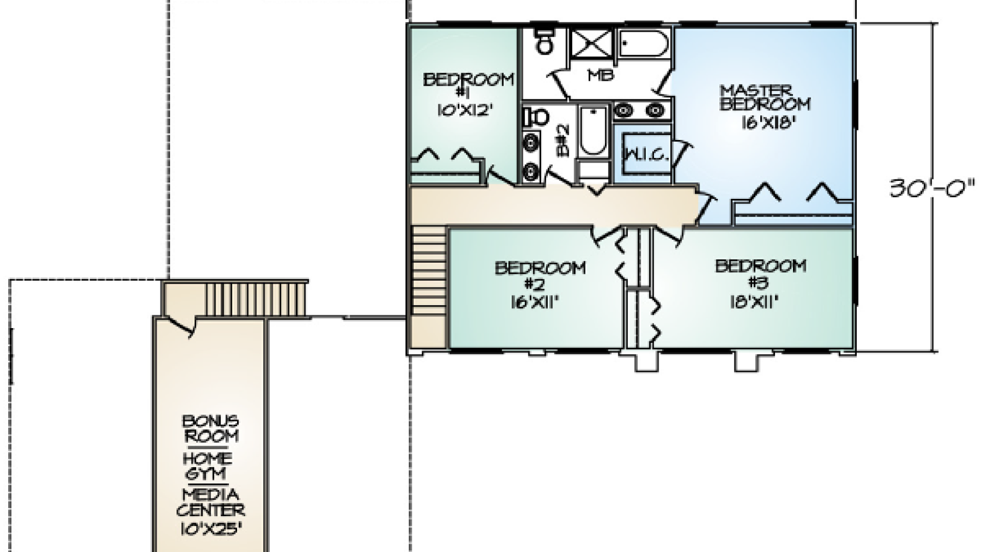
The El Dorado panelized kit home shows a Southwestern influence from its covered front porch and unique exterior to the three distinct living areas inside. The foyer opens into a huge living room with access to the formal dining room. Ample counter space and a central island are just two features of the El Dorado’s kitchen, also offering access to both the dining room and a breakfast room or nook. The expansive family room adjoining a storage room, half bath, and three-car garage comprises the second living area. A multi-purpose, oversized laundry and sewing room is accessible from both inside and outside the home. Just a few steps from the family room, stairs lead to the enormous bonus room above the garage, functional as a storage, game, hobby, or media room. The third living area is upstairs, featuring four bedrooms plus a large master bedroom with private bath. The three-car garage has enough room to include either storage or a work area.
FAQs:
You can buy under 100k the 2-story 1-bedroom home, 2-story barn with 1 studio and 2-car garage, or 1-story and 2-bedroom prefab houses.
Depending on your team size and other conditions, such projects should take between 3 and 6 weeks.
The average cost of a two-story prefabricated house in the USA is 180,000-200,000 dollars, or between $50 and $100 per square foot. This covers the unit cost only, it does not include installation or your builder's team labour costs.
In some states or counties, you need a basic permit, in others, you can put a modular home on your property if you already have a licence to build on it. However, each and every modular house should be reviewed by your municipality, which might request house plans or verify your chosen builder's licensing. PMHI team can help you with local regulations or advise where to find required information.