Napa

Napa

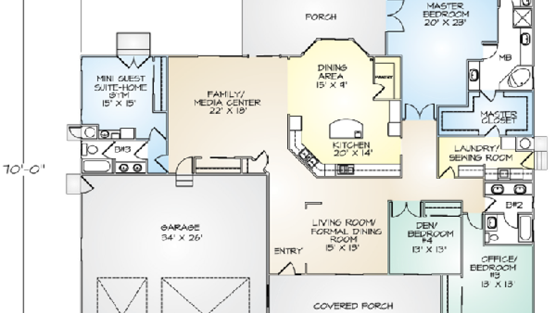
A large front porch sets a welcoming tone to this spacious plan. Inside, the Napa panelized kit home offers almost unlimited possibilities for customizing the individual rooms. Any of the bedrooms can be modified to serve as a den, home office, or game room, while the mini guest suite includes private and house access, a private bath, and a kitchenette. The large master suite enjoys direct access to the back porch and a sizable walk-in closet. Centrally located, the double-entry kitchen and nook has a large island, pantry, and computer desk. The Napa’s unique multi-use laundry room is accessible from the main living areas, master suite closet, guest bath, and the backyard. Adjacent to the kitchen, the multi-use family room offers an extensive view of the backyard as well as direct entry into the three-car garage.

FAQs:

Plan for about 6 to 9 days. Numbered wall panels and roof trusses speed onsite work; timing varies by crew, site, and weather.

Panelized Kit Home Specs:

  • Total Living Space: 3,230 ft² (300 m²
  • Bedrooms: 4
  • Bathrooms: 3
  • Garage: 3 Car
  • Ceiling Height: 10’
  • Covered Porch: 553 ft² (51 m²)
  • Home Plan Cost: Included (April 2026)
  • Building Kit Cost: $166,601 (April 2026)
  • Style: 1 Story
  • Minimum Payment: $7,200
Download Free Plan Review Set

Want More Information?

Invalid Input
Invalid Input
Invalid Input
Invalid Input
Invalid Input

Add to Cart

FAQs:

Prefab homes provide you with the benefits of improved quality control, better energy efficiency, faster build times, cost-effectiveness, and customization.

Contact Us

We will contact you and draw up requirements for the project and estimate.
Please enter your first name
Please enter your last name
Please enter a valid email address
Invalid Input